Provence Mieux

プロヴァンスミュー

『I love my home.』を
もっと身近に
トガシホームが提案する
企画型注文住宅

私たちトガシホームは、ただ家を造っている会社ではありません。

私たちトガシホームは、皆さまに『I love my home.』をお届けする会社です。単に良質な住まいをご提供するだけでなく、毎日が素敵で楽しくなる暮らし、思わず“I love my home!”と叫んでしまうような、心豊かで幸せに満ちた暮らしをお届けしたいと思っています。

カワイイ洋瓦に塗り壁の家。
憧れの南仏(プロヴァンス)風の住まいを
もっと気軽に建てて頂きたい
間取りプランは全部で18プラン

Provence Mieuxの気になるプランを
ちょっとだけ公開!

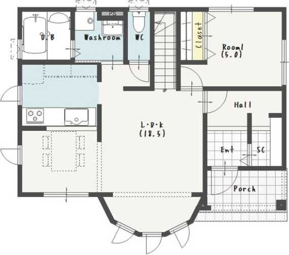
PLAN-B

大きな吹抜けで解放感たっぷり!
明るいリビングに家族が集う家

リビングドアを開ければ、そこには大きな吹抜けのLDKが。

陽の光をたっぷりと浴びて、心地よいリビングに家族が集います。人気のシューズクロークやリビング階段を施した使いやすさ満点のプランです。

PLAN DATA

建築面積
61.69㎡(18.66坪)
1F床面積
57.96㎡(17.53坪)
2F床面積
48.02㎡(14.52坪)
吹抜面積
9.93㎡(3.00坪)
延床面積
105.98㎡(32.05坪)
工事施工面積
109.71㎡(33.18坪)
※画像はイメージです。ご参考にしてみてください。

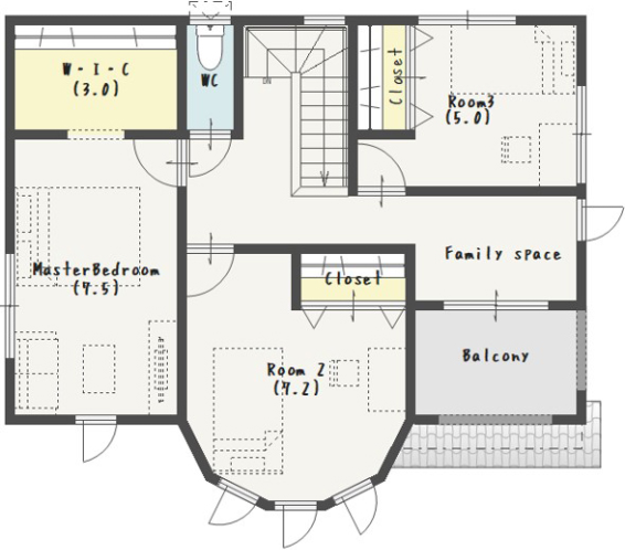
PLAN-H

多角形が生みだす豊かな空間。
美しいセンター・パノラマの家

人気のパノラマ(多角形)を建物の中心に配した美しい外観。
広々としたバルコニーや多目的に使えるファミリースペースなど、家族みんなにやさしいプランです。

PLAN DATA

建築面積
62.98㎡(19.05坪)
1F床面積
59.20㎡(17.91坪)
2F床面積
57.05㎡(17.25坪)
延床面積
116.25㎡(35.16坪)
工事施工面積
121.22㎡(36.67坪)
※画像はイメージです。ご参考にしてみてください。

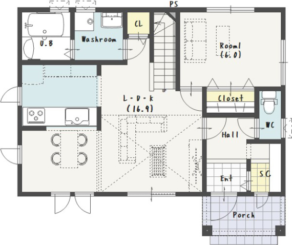
PLAN-J

コンパクトに、使いやすく。
背伸びしすぎない、わたしにぴったりの家

二重に重ねたペディメントが、スッキリとリズミカルな外観を演出。
無駄を省いたコンパクトな間取りの中で、使いやすさを追求しました。
シューズクロークやパントリー、WICと言った収納面が充実しているのもポイントです。

PLAN DATA

建築面積
59.20㎡(17.91坪)
1F床面積
55.48㎡(16.78坪)
2F床面積
55.48㎡(16.78坪)
延床面積
110.96㎡(33.56坪)
工事施工面積
110.96㎡(33.56坪)
※画像はイメージです。ご参考にしてみてください。
他にもいろんなプランをご用意しております
お気軽にお問合せください

施工事例

WORKS

お客様の声に寄り添い、夢を形にしたトガシホームの
家づくりをご覧ください

一覧を見る

 

お問い合わせ・見学予約

*は入力必須項目です
カテゴリ
お名前
フリガナ
E-mail
電話番号
お問い合わせ内容
お問い合わせ詳細
ご希望日時
モデルハウス見学・打合せをご希望の方は、ご希望日時をお教えください。
※お急ぎの場合にはお電話にてお問い合わせください。TEL:022-392-2415

第1希望

第2希望

第3希望

予期しない問題が発生しました。後でもう一度やり直すか、他の方法で管理者に連絡してください。